R
G
B
R
G
B
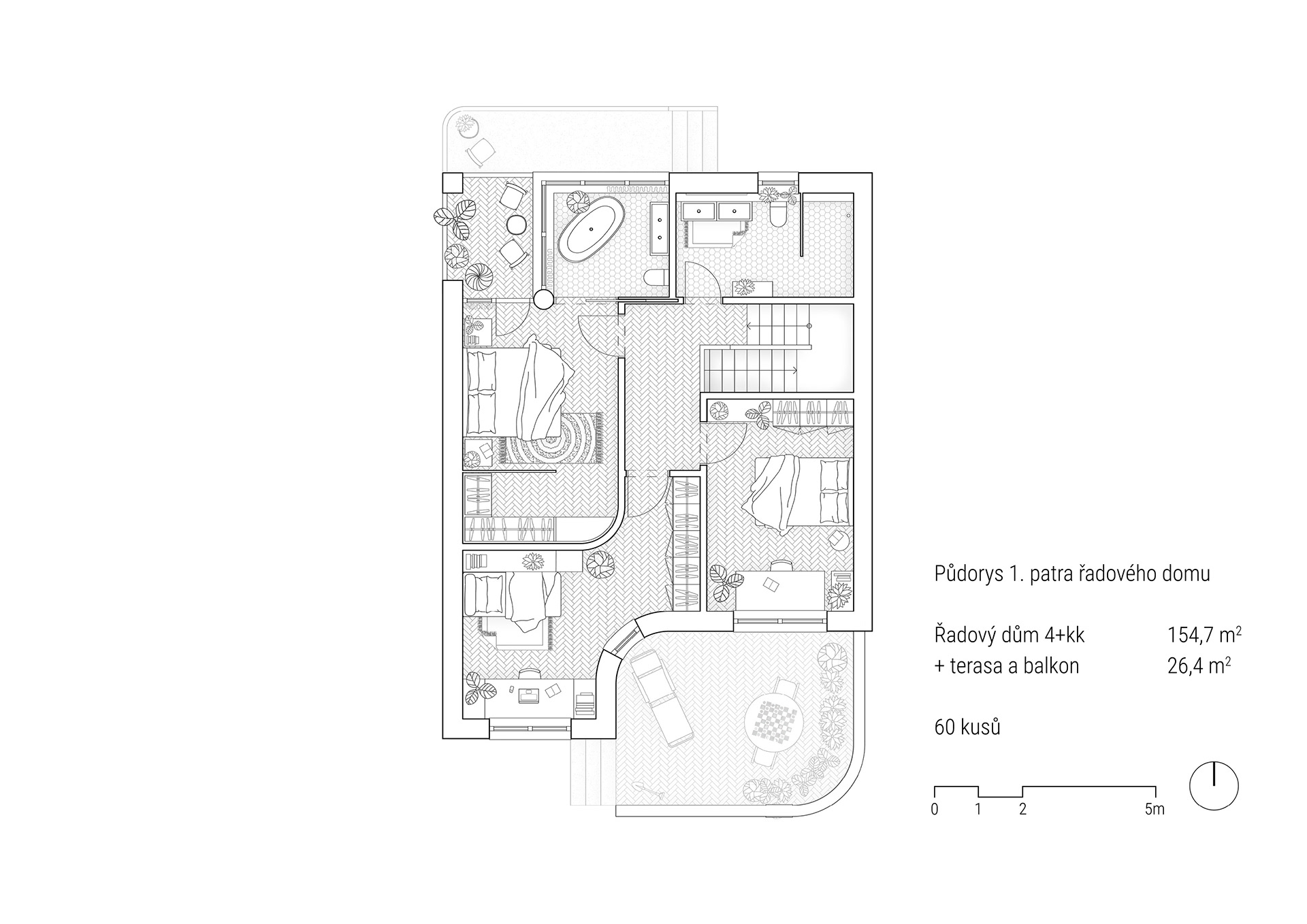
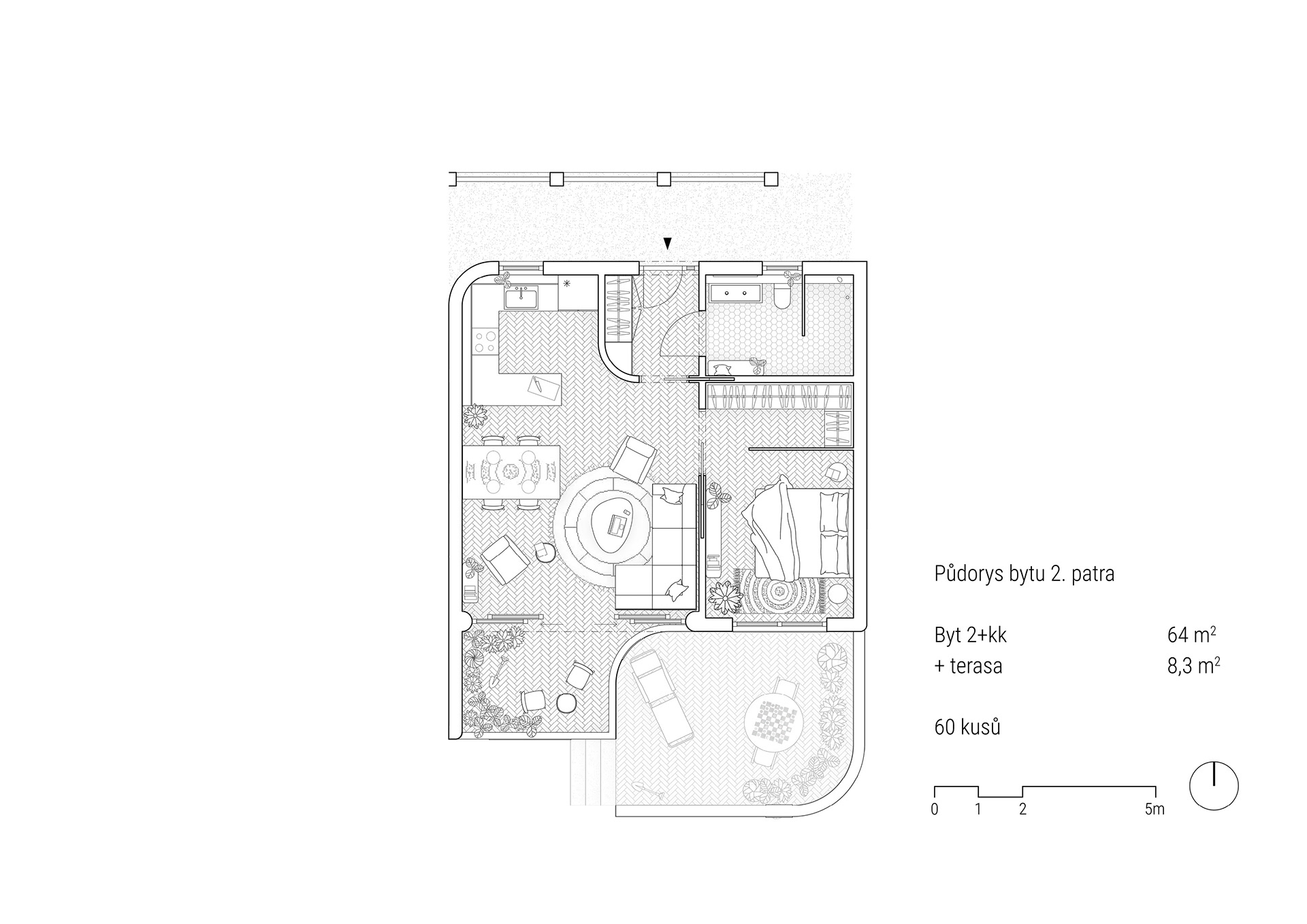
BYDLENÍ NOVÝ STŘÍŽKOV
VOJTĚCH ČEPELÁK
MICHAL KUZEMENSKÝ
PETRA KUNAROVÁ
FA ČVUT / ZS 2021
OCENĚNÍ: NOMINACE - DRUHÁ KŮŽE 2021-22